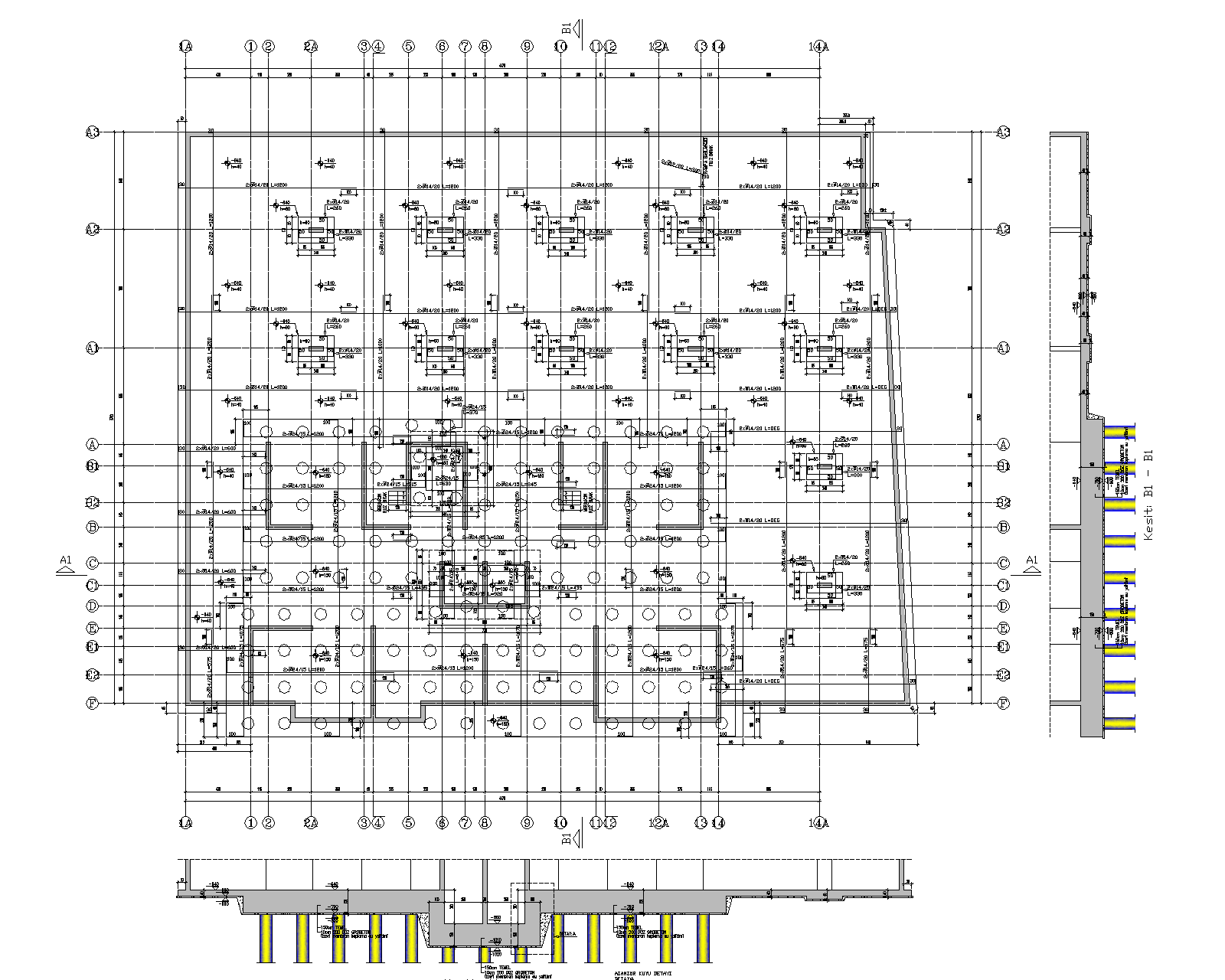
Kınacı Prime Çankaya Residence

İşin Adı :     Kınacı Prime Residence Lüks Konut Projesi Çankaya-Ankara

İşveren :     KINACI YAPI 

İşin m2'si : 30.000 m2